Chỉ rộng 28m² những hai căn hộ này không chỉ đảm bảo đầy đủ các không gian sống cần thiết mà còn vô cùng thú vị nhờ thiết kế thông minh.

Cặp màu trắng - gỗ sáng kết hợp với nội thất nhỏ gọn khiến ngôi nhà thoáng mắt và gọn gàng.
1. Căn hộ 28m² thiết kế đẹp phát mê
Căn hộ này chỉ rộng 28m², tuy nhiên bước vào đây ta không bị cảm giác chật chội bí bách mà chỉ cảm thấy sự gọn gàng, ngăn nắp cùng như sức sống đến từ chất liệu gỗ sáng màu và những điểm nhấn trang trí màu sắc.

Khu vực tiếp khách kiêm giường ngủ được đưa lên cao nhằm tách biệt hẳn với khu vực nấu nướng, ăn uống thường ngày. Điều này còn giúp chủ nhân có thể tận dụng không gian sàn để lưu trữ đồ đạc.

Chiếc sofa có thể biến thành giường ngủ nhanh chóng và cơ động. Cùng nhờ cách thiết kế kết hợp phòng khách và phòng ngủ thông minh mà căn hộ nhỏ còn có cả góc làm việc khá lý tưởng.

Phòng tắm nhỏ nhưng rất gọn gàng do thiết kế tận dụng góc nhà thông minh.

Chiếc gương độc đáo góp phần khiến phòng tắm trở nên thu hút, thú vị hơn.

Logia của căn hộ được thiết kế gần gũi với thiên nhiên nhờ màu xanh của cây cỏ. Không những vậy đây còn là nơi nghỉ ngơi lý tưởng cho chủ nhân để thư giãn...

Trong trường hợp chủ nhân căn hộ muốn có thêm cảm hứng làm việc thì bàn làm việc ở logia này chính là lựa chọn đúng đắn.
2. Căn hộ 28,7m² mang phong cách tối giản
Căn hộ thứ hai này vốn chỉ rộng 28,7m² nhưng nhờ được bài trí theo phong cách tối giản, nên nó vẫn rất đầy đủ tiện nghi đồng thời mang đến cảm giấc ấm áp và thoải mái cho người sử dụng. Với gam màu trắng chủ đạo, chủ nhà đã khéo léo sử dụng các họa tiết trang trí độc đáo ở trần nhà để không gian sống không bị đơn điệu.

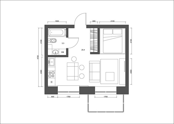
Sơ đồ thiết kế của căn hộ.

Lối vào căn hộ cũng là nơi bố trí tủ đồ. Kiểu tủ âm tường cánh phẳng luôn là giải pháp lưu trữ hoàn hảo cho nhà nhỏ.

Khu vực giường ngủ và nơi tiếp khách được bố trí sát cạnh nhau và được phân chia bằng một tầm rèm trong trường hợp cần riêng tư.

Nơi tiếp khách kiêm bài trí siêu đơn giản. Ngoài ra chiếc ghế nệm bồng bềnh còn rất lý tưởng để chủ nhân ngồi thư giãn xem tivi hay đọc sách.

Phòng ngủ thiết kế đơn giản nhưng thú vị với cặp đèn ngủ ấn tượng và những hình tam giác trang trí trên trần nhà. Phần gầm giường cũng được tính toán kĩ để không gian lưu trữ chăn gối.

Khu bếp nấu, bàn ăn nhỏ gọn với thủ thuật tiết kiệm không gian như sử dụng móc treo hay bàn ăn kiêm ngăn lưu trữ bát đĩa.

Khu vệ sinh nằm ngay gần sát cửa ra vào với công năng rành mạch.

Bồn rửa, máy giặt, kệ lưu trữ được tính toán kĩ để nhỏ gọn mà vẫn có đủ không gian cho tất cả.
Không có nhận xét nào:
Đăng nhận xét