Ngay khi vừa xuất hiện trên website kiến trúc nổi tiếng Architizer, ngôi nhà rộng 160m² được cải tạo từ ngôi nhà cũ ở Lâm Đồng đã nhận được nhiều lời khen tặng.
Sự kết hợp hài hòa giữa ngôi nhà bị bỏ hoang hơn 20 năm với phong cách hiện đại và cây xanh khiến nhiều người phải bất ngờ rồi trầm trồ, khen ngợi.

Ngôi nhà trước khi cải tạo...
... và sau khi cải tạo

Khoảng sân gạch rất Việt Nam của ngôi nhà.
Ngôi nhà vốn đã bị bỏ hoang 20 năm dãi dầm mưa nắng nhưng chủ nhân vẫn muốn giữ lại xác nhà cũ mà cha mình đã tự tay xây dựng lại. Bởi thế khi bắt tay vào cải tạo nhà, kiến trúc sư đã quyết định tạo một lớp vỏ bọc mới bằng chất liệu kính để bảo vệ ngôi nhà cũ vốn không còn đủ khả năng tự chịu nắng mưa.

Phác thảo về sơ đồ cải tạo của ngôi nhà.

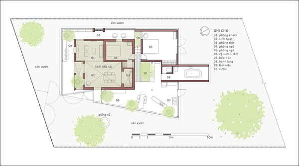
Sơ đồ thiết kế của tổ hợp nhà cũ - mới.

Một số không gian nhà trước và sau cải tạo.

Phần mái nhà được tháo ngói cũ, xử lý lại phù hợp với không gian.
Trong ngôi nhà mới cải tạo, phong cách hoài cổ của ngày xưa vẫn rất rõ ràng qua chất liệu gạch mộc, nền xi măng, bộ bàn ghế gỗ đơn giản. Khu vực nhà cũ dưới sự trợ giúp của lớp khung kính và mảng tường gạch mộc cùng lớp vôi cam đỏ nay trở thành khu bếp ăn, chỗ để xe và hành lang hết sức đẹp mắt.

Khu vực nhà cũ thành khu bếp nấu, bàn ăn chan hòa với thiên nhiên.

Khu nấu ăn, bàn ăn mộc mạc với chất liệu đá, gỗ.

Khu nấu ăn thoáng đãng.
Với lớp vỏ kính mới, chủ nhân còn thỏa mãn được thú vui chăm sóc cây cối của mình bất kể thời gian và thời tiết. Đồng thời cây cỏ, hoa lá được đan xen khéo léo trong từng không gian cũng khiến nơi đây xanh mát, dễ chịu hơn.

Chất liệu kính giúp chủ nhân dễ dàng tạo cho mình một khu vườn ngay trong nhà.

Cây xanh được trồng ở khắp mọi nơi.


Tường nhà được quét vôi lại với màu cam đỏ - là màu gốc của công trình lần đầu được xây dựng.

Ngôi khi khi lên đèn càng, bóng cây in trên nền kính tạo thành một bức tranh tuyệt đẹp.
Các chức năng còn lại bao gồm phòng khách, sinh hoạt, phòng thờ và phòng ngủ nằm trong khối nhà mới xây. Khu nhà tuy có chút thay đổi về không gian và hình thức so với ngôi nhà cũ nhưng vẫn giữ được sự hài hòa của tổng thể bởi sự kết nối của thiên nhiên cũng như các chất liệu xây dựng.

Phòng khách nằm ở trong khu nhà mới nhưng rất cũng mang hơi hướng xưa cũ với bàn ghế gỗ mộc mạc.

Góc làm việc xanh mát và ngập tràn ánh sáng.

Những viên ngói cũ được sử dụng để lát lối đi ở khu vực bồn rửa nên sạch sẽ, không gây ẩm ướt khi nước bắn ra.
Một bồn tắm đá gần gũi với thiên nhiên trong khu nhà mới xây dựng.
Ngoài ra không gian bao quanh nhà cũng được cải tạo thành một vườn rau sạch, hoa sạch để cung cấp cho gia đình.

Vườn rau xanh đáng ghen tị bao quanh ngôi nhà.

Tổng quan ngôi nhà nhìn từ một góc khác.
Nhìn chung sẽ không hề quá khi nói ngôi nhà xinh đẹp ở Lâm Đồng này thực ra khiến bất cứ ai phải trầm trồ với sự cổ điển và hiện đại giao hòa tuyệt vời qua từng không gian. Đây thực sự là một giải pháp bạn có thể tham khảo khi muốn giữ gìn những kỉ niệm xưa cũ đã có từ thưở ấu thơ mà vẫn đảm bảo được nhu cầu sinh hoạt hiện đại.
Không có nhận xét nào:
Đăng nhận xét